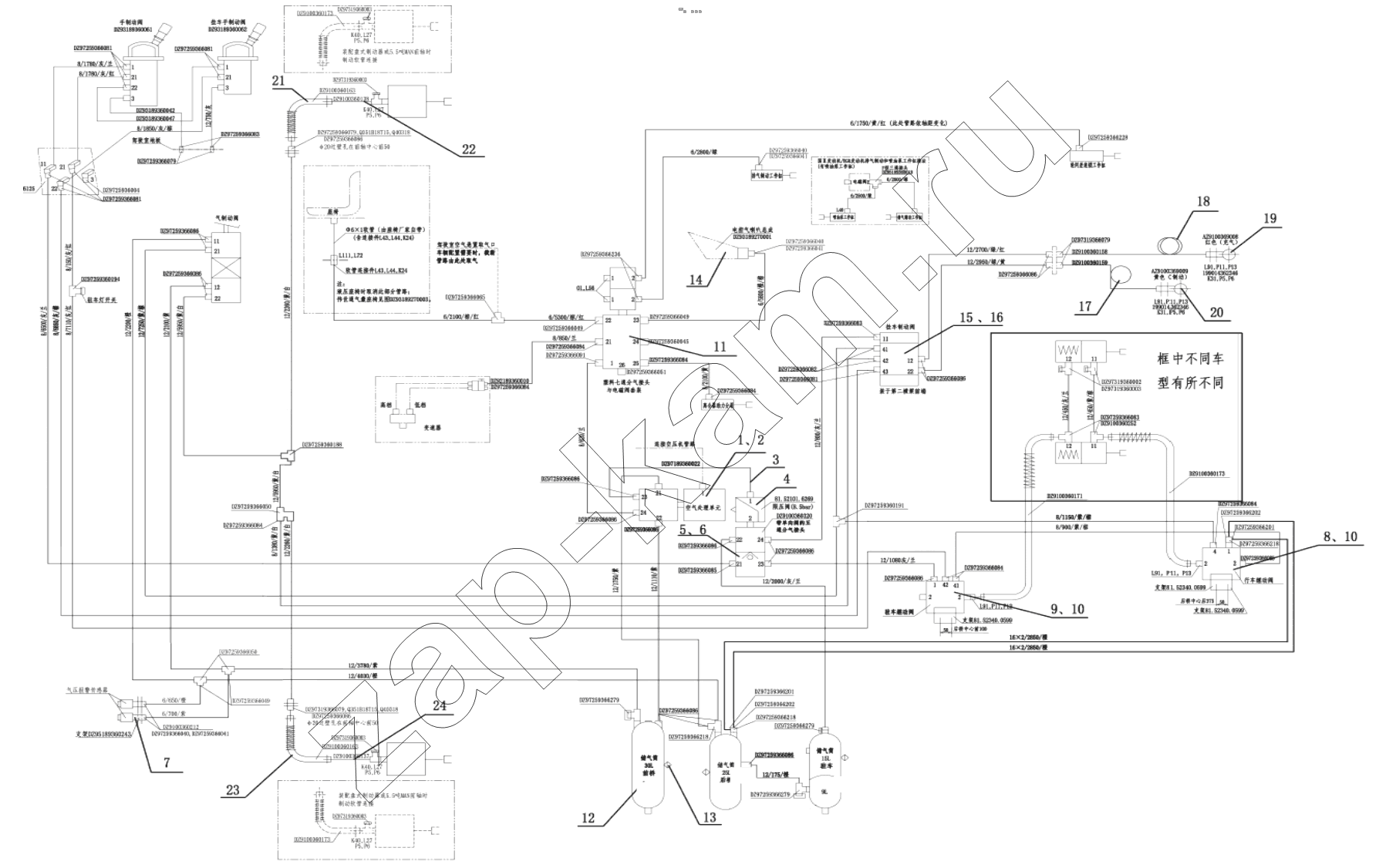
DOUBAL CIRCUIT BRAKE SYSTEM II
/ Shaanxi Shacman SX5256GJBMR364

1
1
1
1
1
1
1
1
2
3
4
5
6
7
8
9
10
10
11
12
13
14
15
16
17
18
19
20
21
21
21
21
22
23
23
24
Поз. | Артикул | Название детали | Кол-во | |
---|---|---|---|---|
DZ9100368007 | DZ9100368007 | Trailer control valve | 1; | |
DZ9114360400 | DZ9114360400 | Bracket | 1; | |
DZ95189360070 | DZ95189360070 | Multi loop joint | 1; | |
DZ95189362002 | DZ95189362002 | Fitting assemble for assistant use | 1; | |
DZ97259360212 | DZ97259360212 | Air tank | 1; | |
DZ97259360210 | DZ97259360210 | Air tank | 1; | |
DZ93189360226 | DZ93189360226 | Air tank | 1; | |
DZ97189360009 | DZ97189360009 | Air tank | 1; | |
81.52101.6269 | 81.52101.6269 | Pressure limited | 1; | |
DZ97259360107 | DZ97259360107 | Air tank | 1; | |
81.52151.6094 | 81.52151.6094 | Four-loop guard valve | 1; | |
AZ9100360067 | AZ9100360067 | Четырехсекционый защитный клапан | 1; | |
DZ93189360194 | DZ93189360194 | Air tank | 1; | |
DZ95189360400 | DZ95189360400 | Breaket | 1; | |
81.52340.0743 | 81.52340.0743 | Breaket | 1; | |
SZ905000009 | SZ905000009 | Air tank | 1; | |
AZ9100368155 | AZ9100368155 | Кран водовыпуска | 5; | |
DZ95259362711 | DZ95259362711 | Relay valve Breaket | 1; | |
1 | DZ97189360018 | APU Breaket | 1; | |
1 | DZ91189360016 | Air dryer | 1; | |
1 | DZ95189362020 | Air dryer | 1; | |
1 | DZ96259360020 | Bracket | 1; | |
1 | DZ96189369474 | APU | 1; | |
1 | DZ91189360049 | Air dryer | 1; | |
1 | DZ96189360000 | APU | 1; | |
1 | DZ96189360003 | APU | 1; | |
2 | DZ97189360022 | Flexible tube | 1; | |
3 | DZ9100360320 | Fitting | 1; | |
4 | DZ95189362732 | Multi loop joint Breaket | 1; | |
5 | DZ95189360243 | Baroceptor Breaket | 1; | |
6 | DZ95259360105 | Relay valve | 1; | |
7 | DZ95259360106 | Relay valve | 2; | |
8 | AZ9014360047 | Relay valve | 1; | |
9 | 81.52340.0599 | Relay valve Breaket | 1; | |
10 | DZ95259362711 | Relay valve Breaket | 1; | |
11 | DZ97259360007 | Air tank | 1; | |
12 | DZ97259360008 | Air tank | 1; | |
13 | DZ97259366054 | Drainage valve | 5; | |
14 | DZ93189270001 | Pnumatic horn | 1; | |
15 | DZ9100360330 | With throttle trailer control valve | 1; | |
16 | DZ96259360079 | Trailer control valve Breaket | 1; | |
17 | DZ9100360159 | Spiral tube assembly | 1; | |
18 | DZ9100360158 | Spiral tube assembly | 1; | |
19 | AZ9100369008 | Соеденительная коловка | 1; | |
20 | AZ9100369009 | Соеденительная коловка | 1; | |
21 | DZ9100360175 | Hose | 1; | |
21 | DZ9100360173 | Hose | 1; | |
21 | DZ9100360165 | Hose | 1; | |
21 | DZ9100360163 | Hose assembly | 1; | |
22 | SZ904000818 | Tube 12 right air chamber / hose | 1; | |
23 | DZ9100360173 | Hose | 1; | |
23 | DZ9100360163 | Hose assembly | 1; | |
24 | SZ904000819 | Tube 12 left air chamber / hose | 1; |
Содержащиеся в справочниках-каталогах запасные части и детали не предлагаются к продаже, а носят исключительно информационный характер