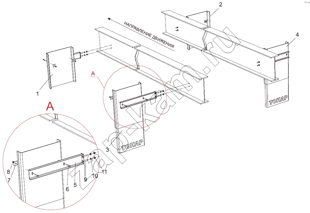
Установка крыльев на модели 97461, 97461Н, 974611
/ Тонар-97461

1
2
3
4
5
6
7
8
9
10
11
Поз. | Артикул | Название детали | Кол-во | |
---|---|---|---|---|
1 | 97461-3102020 | Крыло переднее | 1; | |
2 | 97461-3102020-01 | Крыло переднее | 1; | |
3 | 97461-3102030 | Крыло заднее | 1; | |
4 | 97461-3102030-01 | Крыло заднее | 2; | |
5 | 97461-3102040 | Кронштейн в сборе | 4; | |
6 | 1282001845 | Болт М8х45 | 8; | |
7 | 83101А-0000061 | Шайба | 8; | |
8 | 1280362908 | Гайка М8 | 8; | |
9 | 1282001050 | Болт М12x80 | 8; | |
10 | 1286010010 | Шайба 10 | 8; | |
11 | 1283000110 | Гайка М10 самостопорящаяся | 8; |
Содержащиеся в справочниках-каталогах запасные части и детали не предлагаются к продаже, а носят исключительно информационный характер